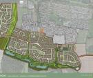
Barton Willmore has submitted an outline application on behalf of Persimmon Homes and Bellway Homes for up to 1,600 dwellings in Cramlington,...
Barton Willmore has submitted an outline application on behalf of Persimmon Homes and...
In cooperation with the Civica housing association and KPC, C.F. Møller is developing 178 new student housing units at Odense's new...
In cooperation with the Civica housing association and KPC, C.F. Møller is...
A new islamic community centre and mosque in Copenhagen is a modern, Nordic interpretation of Islamic architecture, and represents a new chapter in...
A new islamic community centre and mosque in Copenhagen is a modern, Nordic...
Sheppard Robson has received planning permission from Hillingdon Council for the remodelling of the Wilfred Brown Building at Brunel University...
Sheppard Robson has received planning permission from Hillingdon Council for the...
The Haikou Tower planned for the capital of the island of Hainan passed an earthquake test.
The Haikou Tower planned for the capital of the island of Hainan passed an earthquake...
The North Denmark Region wishes to attract more physicians. One of the region's initiatives is a number of health centres in North Jutland,...
The North Denmark Region wishes to attract more physicians. One of the region's...
Manchester Science Partnerships (MSP) has revealed plans for the first phase of development at its 400-acre life science campus at Alderley Park in...
Manchester Science Partnerships (MSP) has revealed plans for the first phase of...
The first mixed-use development in Sharja’s Al Nadha district is open for business. On February 25, JMS Property Development and Management...
The first mixed-use development in Sharja’s Al Nadha district is open for business....
FXFOWL Architects announced that they are designing a new building in Baku.
FXFOWL Architects announced that they are designing a new building in Baku.
The hotel’s striking form is a new visual anchor for this emerging waterfront district in Bahrain’s capital city.
The hotel’s striking form is a new visual anchor for this emerging waterfront...
After a two year interruption to the planning permission process for the Kunsthaus Zurich, the project has now been given the final go-ahead.
After a two year interruption to the planning permission process for the Kunsthaus...
Located in close proximity to the Forbidden City, construction is underway on the new headquarters of China’s oldest art auction house....
Located in close proximity to the Forbidden City, construction is underway on the new...
The Sogn & Fjordane Art Museum in Førde in Norway, a building that has become a beacon of the small community, has been awarded the...
The Sogn & Fjordane Art Museum in Førde in Norway, a building that has become...
Siemens has celebrated the first anniversary of moving into its award-winning Middle East headquarters at Abu Dhabi’s Masdar City in the UAE.
Siemens has celebrated the first anniversary of moving into its award-winning Middle East...
Missouri Gov. Jay Nixon’s task force today released a new round of stadium and property renderings by HOK.
Missouri Gov. Jay Nixon’s task force today released a new round of stadium and...
C.F. Møller Architects, artist Conrad Shawcross and developer Knight Dragon reveal the design of a major new art and architecture...
C.F. Møller Architects, artist Conrad Shawcross and developer Knight Dragon reveal...
AstraZeneca has announced that Cambridge City Council has granted planning permission for its new global R&D centre and corporate headquarters.
AstraZeneca has announced that Cambridge City Council has granted planning permission for...
Architectural practice Sheppard Robson has been appointed by leading young people’s arts organisation Contact to carry out the £6m...
Architectural practice Sheppard Robson has been appointed by leading young people’s...
Gensler vision for London’s unused spaces and surplus infrastructure would offer London the world’s first network of energy-generating...
Gensler vision for London’s unused spaces and surplus infrastructure would offer...
White arkitekter and the KTH School of Architecture gets key positions in the international research network Innochain that will develop new digital...
White arkitekter and the KTH School of Architecture gets key positions in the...